8,000円で平面・立面・パース・内観・鳥瞰を作成

多くの大手ハウスメーカー様も

当社の入力支援&ウォークインホーム

をご採用頂いております。

ウォークインホームを購入すると

入力支援システムがついてくる!

貴社で作成したプランを

CAD・プレゼン図面に

平面(カラー・白黒・1/75)・立面図(カラー・白黒)・カラーパース・カラー内観パース

カラー鳥瞰を社員の代わりに作成します。

まずはお試しプレゼンでお客様にプレゼンしてみて下さい。

システム導入の費用をお知らせしますのでお問い合わせ下さい。

 

▼▼お問合はこちら▼▼

TEL : 045-222-8815

受付時間 : 9:00〜20:00 

日曜・祝日はお休み

▼▼お申し込みはこちら▼▼

Web申込み

 

WS000000.JPG


以下が作成内容です!

WX000001.JPG


WX000000.JPG


WX000002.JPG


WX000003.JPG


WX000004.JPG


WX000009.JPG


WX000005.JPG


WX000006.JPG


WX000007.JPG


WX000008.JPG

 

▼▼お問合はこちら▼▼

TEL : 045-222-8815

受付時間 : 9:00〜20:00 

日曜・祝日はお休み

入力支援システム

低コストで、本格的なカラープレゼンをすぐはじまられる

年間10棟以内の価格設定になります。

①「スピードパック」  初期費用 49,800円 月額費用10,000円/月 月1棟 2棟以降10,000円

プレゼンシート当社オリジナル使用

全8ページ カラー平面図・カラー立面図・外観パース2・内観パース2・俯瞰図1・2階

②「基本パック」    初期費用 98,000円 月額費用8,000円/月 月1棟 2棟以降8,000円

プレゼンシートカスタマイズ

全12ページ カラー平面図・カラー立面図・外観パース4・内観パース4・鳥瞰図・俯瞰図

③「オリジナルパック」 初期費用198,000円 月額費用7,000円/月 月1棟 2棟以降7,000円

プレゼンシートカスタマイズ+SUNNETオリジナルマスター(別売) ウォークインホームお持ち

ユーザー様は双方向でデータの互換ができます。

全20ページ カラー平面図・カラー立面図・外観パース4・内観パース4・鳥瞰図・俯瞰図

パースアングルをご指示頂けます。画像データもお渡しjpegにて提供致します。

③ウォークインホームソフト導入の場合は初期費用は不要になります。

 プレゼンソフトウォークインホーム17導入すれば当社で作成したプランを自ら修正でき

お客様の前でプレゼンも可能になります。

ウォークインホーム スタンダード(プレゼンタイプ)通常提供価格800,000円(税別)~

人気№1サービス 

プラン入力→プレゼンボード作成・実行予算作成迄、当社建築スタッフが

親切・丁寧に対応致します。

年1回のバージョンアップ無償

ヘルプディスク(月〜土 9:00〜20:00 祭日・当社休日を除く) 

電話による、プレゼン方法や操作方法の技術的の質問や問題点を解決致します。

メールサポート24時間受付

Webパックで物件をメールで送って頂ければ、問題点を共有して解決。

会員制(有料)の添景素材ダウンロードサービス

添景(点景)素材データを24時間いつでも必要な時にダウンロード可能な

会員制素材サイトです。

素材データは商用利用権付きで、ダウンロード後、スグにご活用いただけます。

月額875円〜利用可能です!月々素材を400データ以上追加中です。

プロジェクターを使った対面プレゼンテーション同行サービス

見込客様・施主様にプレゼンに同行してプレゼンのお手伝いも致します。

お急ぎプランの対応

お急ぎの提案ご相談下さい!当日2社限定です。

住宅プレゼンのプロが作成します。

新ウォークインホームプラザ

明日急にお客様に提案しないと メールで送ってスピーディーに対応したい。

夜遅くまでCADで作成して提案したり間に合わず契約を逃してしまう。

ダメにしても早く見切りをつけるためにはスピーディーな対応が必要です。

そんな急対応専門で支援をするシステムです。

翌日PDFでプレゼン資料をお手元にお届け致します。

費用は10,800円(税込)

最新ウォークインホーム18で作成致します。

WS000000.JPG


住宅 40坪程度

平面・立面・外観パース・内観パース・鳥瞰図

リフォーム・マンション

平面・内観パース・鳥瞰図

20180312-1.jpg


20180312-2.jpg


20180312-3.jpg

 

▼▼お問合はこちら▼▼

TEL : 050-3766-6679

受付時間 : 9:00〜20:00 

日曜・祝日はお休み

バージョンアップ 50%割引

ヘルプディスク(月〜土 9:00〜20:00 祭日・当社休日を除く) 

電話による、プレゼン方法や操作方法の技術的の質問や問題点を解決致します。

メールサポート24時間受付

Webパックで物件をメールで送って頂ければ、問題点を共有して解決。

会員制(有料)の添景素材ダウンロードサービス

添景(点景)素材データを24時間いつでも必要な時にダウンロード可能な

会員制素材サイトです。

素材データは商用利用権付きで、ダウンロード後、スグにご活用いただけます。

月額875円〜利用可能です!月々素材を400データ以上追加中です。

バージョンアップは有償になります。

ヘルプディスク(月〜土 9:00〜20:00 祭日・当社休日を除く) 

電話による、プレゼン方法や操作方法の技術的の質問や問題点を解決致します。

メールサポート24時間受付

Webパックで物件をメールで送って頂ければ、問題点を共有して解決。

会員制(有料)の添景素材ダウンロードサービス

添景(点景)素材データを24時間いつでも必要な時にダウンロード可能な

会員制素材サイトです。

素材データは商用利用権付きで、ダウンロード後、スグにご活用いただけます。

月額875円〜利用可能です!月々素材を400データ以上追加中です。

ウォークインホームを導入したが、サポートを受けていない。

ご安心下さい。スッポトサービスは短期間のサポートOKです。

7日間・14日間・1ヶ月・3ヶ月・6ヶ月 コースをご用意しております、

当社サポート会員様と同様サポートが短期で受ける事ができます。

ヘルプディスク(月〜土 9:00〜20:00 祭日・当社休日を除く) 

電話による、プレゼン方法や操作方法の技術的の質問や問題点を解決致します。

メールサポート24時間受付

Webパックで物件をメールで送って頂ければ、問題点を共有して解決。

提案中のプランニングをお預かり

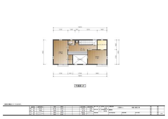
藤川建設様平面 の500.jpg
藤川建設様立面 の500.jpg

 外壁はニチハのブラウン 屋根はモスグリーン 床・天井は無垢

 サッシは白でお願いします。と神奈川県の藤川建設様より依頼です!

 翌日には、プレゼンボードがお手元に届き住宅プレゼンが実現!

 今まではこんなに早く出来なかった1週間かかってたと藤川社長

 平面入力からスタート

藤川建設入力1.jpg
藤川入力2.jpg

サッシ+建具入力はAI建具入力で簡単入力です。

藤川入力3.jpg
藤川入力4.jpg

入力のつづきはこちら→ 

CADを導入したが活用できていない、住宅プレゼンができていない

これからプレゼンしたいがソフトを購入するのは等でお困りの
今すぐプレゼンしたいプランがある
社長さまへ
 
社員1名分は十分働きますよ!
もうCADを買う必要はありません。
他社では建築ソフトを導入すると80万円が通常かかりますが、
当社では月額5,250円
でプレゼンボードを作成致します。
ユーザー数限定のため、お申し込みはお早めにお願いいたします。
ウォークインホームプラザ プラン入力支援サービス
ウォークインホームをお持ちの方又はCADを持っているが、住宅プレゼンができていない。
やってはいるが、思ったようなパースやプレゼンボードができない。
こんなお悩みにお答えするのが、ウォークインホームプラザ プラン入力支援サービスです。

お問合せ・ご相談はこちら

受付時間:9:00~20:00
定休日:日祝祭日

パースウォークインホーム 建築CAD プレゼンソフト 住宅・建築パース作成
工務店のための住宅プレゼンテーション『受注をとる』
ウォークインホーム プレゼンを建築CADカラープレゼンシステム『ウォークインホーム』を利用してプレゼンテーションの特化したサービスをご提案します。大手ハウスメーカーの勝つプレゼンテーションはスピードです。ウォークインホーム スピードプレゼンをしないと・・・住宅プレゼンウォークインホーム の専門サイトです。

ウォークインホーム 建築CAD プレゼンソフト ウォークインホーム  住宅・建築パース作成 高画質パース wallstat 高画質パース

建築パース作成・建築パースの作制・制作の依頼ならウォークインホームプラザ。建築CADカラープレゼンシステム walkinhomeを利用し、建築プレゼンボード・住宅プレゼンテーションを提供。内観・外観・内装バース製作は外注で解決!


ウォークインホームプラザのサンネット社

パソコン|モバイル
ページトップに戻る